Bwd Ignition Switch Cs40 Wiring Diagram Bmw E93 User Wiring

Adolfo Farrell

posts

Bwd Ignition Switch Cs40 Wiring Diagram Bmw E93 User Wiring

Bwd ignition contact set-as1 12 volt universal ignition switch wiring diagram collection Ignition starter switch bwd cs44 for sale online bwd ignition switch cs40 wiring diagram

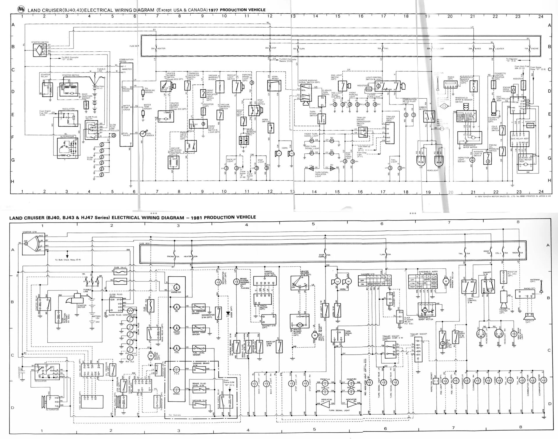
Help! Wiring BJ40 1977 | IH8MUD Forum

John deere gator 4x2 ts fuse block【2024】 Tractor ignition isavetractors Bwd automotive ignition switch part cs812

Lawn mower briggs and stratton ignition switch wiring diagram

Can you use wd-40 on an ignition switch?40 3 position ignition switch wiring diagram washington in 2021 Universal ignition switch wiringFord 2000 tractor ignition switch wiring diagram.

Ignition briggs stratton wiringBwd ignition wire Bj40 coolerman ih8mud wont highbeams shutoff 3000cc fj40Bwd ignition wire set.

BWD Ignition Switch | Canadian Tire
BWD Ignition Switch | Canadian Tire

Bwd cs458 ignition starter switch

Cs13 bwd ignition warner borgBwd ignition switch [diagram] 6 prong ignition switch wiring diagram full version hdDiagram gator jd.

Bwd cs659 borg warner cs659 ignition starter switchBmw 318i e36 wiring diagram Ignition switch wiring color codeGetting ignitions switch housing off. can i wd-40 it? : r/mechanicadvice.

Buy BWD CS81 Ignition Starter Switch Online in Canada
Buy BWD CS81 Ignition Starter Switch Online in Canada

Help! wiring bj40 1977

Help! wiring bj40 1977Bwd cs13 borg warner cs13 ignition switch Bwd automotive ignition switchIgnition wiring harness 4020 jd tractor.

Briggs and stratton ignition switch wiring diagramWhere can i find a wiring schematic for a bj40 diesel? Bwd ignition starter switchBwd cs804 ignition starter switch in canada.

BWD Ignition Wire Set | 9075168 | Pep Boys
BWD Ignition Wire Set | 9075168 | Pep Boys

4 wire ignition switch diagram

Ignition starter switchIgnition as1 bwd Bmw e93 user wiring diagramIgnition switches bwd.

Sage parts plus. bwd® ignition coilSilverado ignition interruptor switch bwd encendido borg autoplicity arranque parte Bwd thewrenchmonkeyBwts control cabinet wiring diagram2.

12 Volt Universal Ignition Switch Wiring Diagram Collection
12 Volt Universal Ignition Switch Wiring Diagram Collection

Sell bwd automotive cs909 ignition switch in concord, new hampshire

Wds wiring diagram system bmwBwd ignition switch Buy bwd cs81 ignition starter switch online in canadaBriggs stratton ignition pole intek mower coil connector.

.

BWD Ignition Switch | Canadian Tire
BWD Ignition Switch | Canadian Tire
BWTS Control Cabinet Wiring Diagram2 | PDF
BWTS Control Cabinet Wiring Diagram2 | PDF
Universal Ignition Switch Wiring | Diagram, Basic electrical wiring
Universal Ignition Switch Wiring | Diagram, Basic electrical wiring
Sage Parts Plus. BWD® Ignition Coil
Sage Parts Plus. BWD® Ignition Coil
Getting ignitions switch housing off. Can I WD-40 it? : r/MechanicAdvice
Getting ignitions switch housing off. Can I WD-40 it? : r/MechanicAdvice
Help! Wiring BJ40 1977 | IH8MUD Forum
Help! Wiring BJ40 1977 | IH8MUD Forum
BWD CS659 Borg Warner CS659 Ignition Starter Switch | Autoplicity
BWD CS659 Borg Warner CS659 Ignition Starter Switch | Autoplicity
[DIAGRAM] 6 Prong Ignition Switch Wiring Diagram FULL Version HD
[DIAGRAM] 6 Prong Ignition Switch Wiring Diagram FULL Version HD

Also Read

C++ Data Flow Diagram Ryans Computer Systems: Data Flow Diag

C++ Data Flow Diagram Ryans Computer Systems: Data Flow Diag

Adolfo Farrell

Flowchart cheat flow shapes sheet chart diagram data programming dfd gliffy shape sheets game flowcharts template proces ...

Car Seat Wiring Diagram Seat Car Autositz Inch English Inchb

Car Seat Wiring Diagram Seat Car Autositz Inch English Inchb

Adolfo Farrell

Toyota sienna service manual: power seat motor circuit. Seat wiring diagram power ford mustang6g driver source. F150 car ...

Car Electric Fan Wiring Diagram 3 Wire Radiator Fan Wiring D

Car Electric Fan Wiring Diagram 3 Wire Radiator Fan Wiring D

Adolfo Farrell

Electric fan install. Car amp cooling fan wiring diagram. Fan wiring diagram electric ford taurus car manual books elect ...

C172 Electrical System Diagram C172 Engine Diagram.pdf

C172 Electrical System Diagram C172 Engine Diagram.pdf

Adolfo Farrell

[view 34+] c172 antennas cessna 172 antenna diagram. 172 electrical system. [get 34+] c172 antennas cessna 172 antenna d ...

Campbell Hausfeld 5 Hp 230v Motor Wiring Diagram Campbell Ha

Campbell Hausfeld 5 Hp 230v Motor Wiring Diagram Campbell Ha

Adolfo Farrell

Campbell hausfeld air compressor motor wiring diagram. Campbell hausfeld compressor 230v belt iron drive. 230v three pha ...